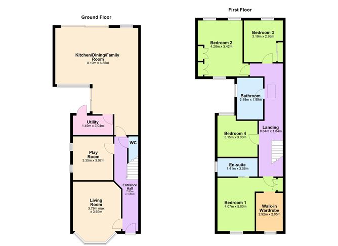
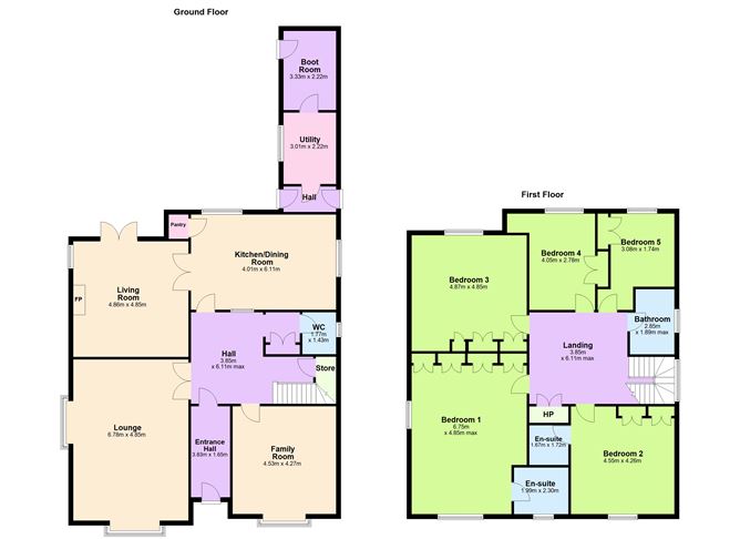
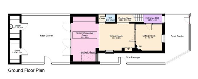
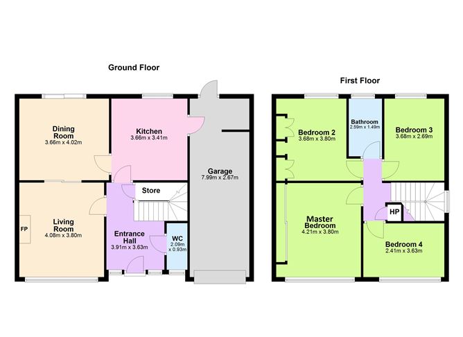
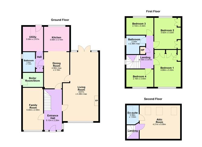
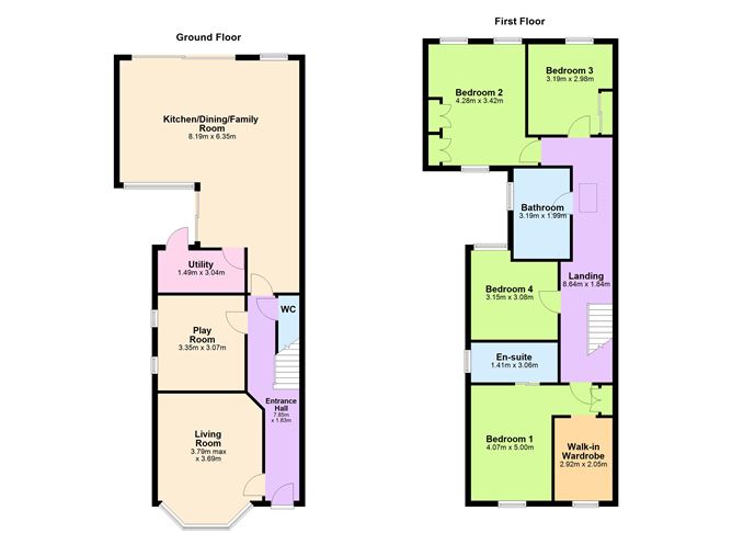
View this search in machine-readable form:
Download JSON feed of these listingsNestled in the charming locale of Rathfarnham, the housing market offers an enticing selection of homes. Currently, there are 84 houses available, with bedroom options ranging from 2 to 7. The most prevalent choice among buyers is the 4-bedroom house. As for bathrooms, these houses feature between 1 and 7. Continue your exploration on MyHome.ie to uncover the ideal home for you. In Rathfarnham, the housing market presents a diverse range of price points, starting from €385,000 and extending to €2,000,000. The median price for houses here is €795,000. For those interested in specific bedroom configurations, two-bedroom houses are priced at a median of €495,000. If you're considering a larger home, three-bedroom houses have a median value of €650,000, while four-bedroom homes are available at €862,500. This variety ensures that potential buyers can find a home that fits their needs and budget.











































