Description
Features
BER Details
Directions
Viewing Details
Show more...





























| Beds | 4 beds |
| Price | €395,000 |
| Property Type | |
| Size | 139 meters2 |
| Energy Rating | BER-Exempt |
| Refreshed on | Nov 11, 2025 |
| Eircode | A94R625 |
| Group Name | John O'Sullivan Property Consultants |
| Sales License Number | 004712 |
Description
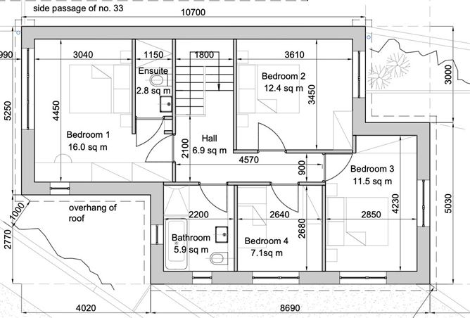
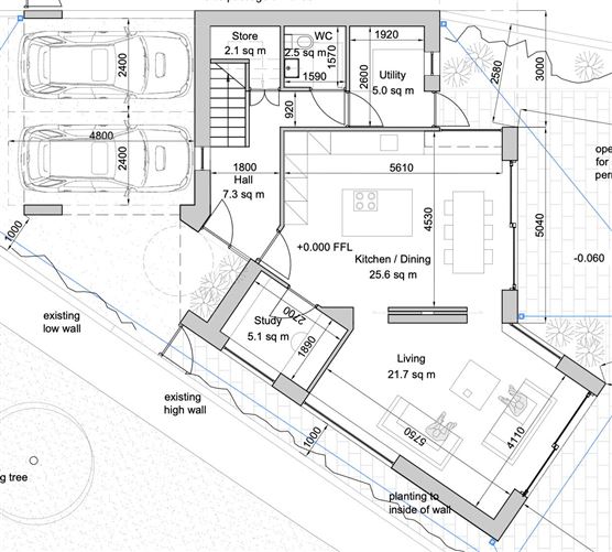
A rare opportunity to acquire a ready to go site with full planning permission on this much sought after, established road close to local schools, Bus, Dart, leisure facilities and Monkstown Village. With a site area of approx. 0.027 ha, planning permission was granted on 20th March 2025 for this attractive Robin Mandal designed four-bedroom detached home. Located on the corner of Windsor Park and Stradbrook Road, this prime residential site, planning reference D24A/0979 offers a very rare opportunity to build a bespoke home in one of Dublin’s most sought after suburbs. Located close to several creches, numerous primary and secondary schools in the area including Rockford Manor, Scoil Lorcain, Guardian Angels, CBC Monkstown Park to name a few. Also at close hand is Blackrock College Rugby Club, local shops and the leisure centre on Monkstown Avenue only a short walk away. Also within easy reach of this site are Monkstown Village with its local shops, coffee shops and cafes, Seapoint for sea bathing, Salthill & Monkstown Dart Station and Monkstown Lawn Tennis Club as well as the coastal walks on the West & East Piers in Dun Laoghaire. The finished home will offer a well-balanced and contemporary family layout, designed with comfort, light and functionality in mind. With off street carparking with a carport for two cars, the entrance door will open to a spacious hallway with a store cupboard, a cloakroom with wc and a utility. The kitchen & dining room is located to the rear and opens to the sitting room and separate study. Upstairs there will be four bedrooms, the main bedroom will be ensuite and there will also be a family bathroom. Outside there’s gardens to the front and rear and a pleasant outlook being located on this prominent corner.
Features
Site with full planning permission granted on 20th March 2025 Planning reference D24A/0979 Site for a detached, four bedroom home with garden and two car, carport Attractive contemporary design by Robin Mandal Architects Prominent location on the corner of Windsor Park and Stradbrook Road Close to local schools both primary and secondary including Rockford Manor, Scoil Lorcain, Guardian Angels, CBC Monkstown Park to name a few Site area approx. 0.027 ha and the completed house will be approx.139 sq m A short walk to Monkstown Village with its range of shops, restaurants and cafes In close proximity to Seapoint for swimming, Monkstown Lawn Tennis Club and coastal walks including the West and East Piers in Dun Laoghaire Salthill & Monkstown Dart Station is a short walk away as are numerous bus routes including the 24-hour E2 with easy access to UCD & the city centre as well as the Aircoach to the Airport as well as the L25 linking Dun Laoghaire with Dundrum
BER Details
BER: Exempt
Directions
Located on the corner of Windsor Park and Stradbrook Road a short walk from Monkstown Avenue, Monkstown Village, bus service and Dart Any intending purchaser(s) shall accept that no statement, description or measurement contained in any newspaper, brochure, magazine, advertisement, handout, website or any other document or publication, published by the vendor or by John O’Sullivan Property Consultants, as the vendor’s agent, in respect of the premises shall constitute a representation inducing the purchaser(s) to enter into any contract for sale, or any warranty forming part of any such contract for sale. Any such statement, description or measurement, whether in writing or in oral form, given by the vendor, or by John O’Sullivan Property Consultants as the vendor’s agent, are for illustration purposes only and are not to be taken as matters of fact and do not form part of any contract. Any intending purchaser(s) shall satisfy themselves by inspection, survey or otherwise as to the correctness of same. No omission, misstatement, misdescription, incorrect measurement or error of any description, whether given orally or in any written form by the vendor or by John O’Sullivan Property Consultants as the vendor’s agent, shall give rise to any claim for compensation against the vendor or against John O’Sullivan Property Consultants, nor any right whatsoever of rescission or otherwise of the proposed contract for sale. Any intending purchaser(s) are deemed to fully satisfy themselves in relation to all such matters. These materials are issued on the strict understanding that all negotiations will be conducted through John O’Sullivan Property Consultants
Viewing Details
Viewing by appointment






Date created: Nov 10, 2025
View this search in machine-readable form:
Download JSON feed of this listing