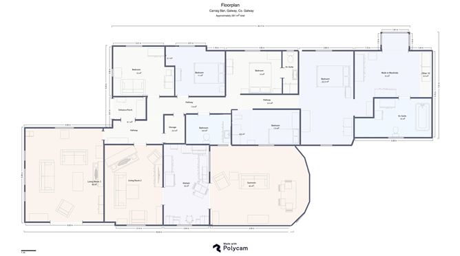
Description
Accommodation
Features
- Beautiful detached residence
- Abundance of recption space & accommodation
- Large corner site
- Mature greenery surroundings adding extra privacy
- Excellent condition throughout
- Popular cul-de-sac residential development
- Close proximity to Menlo & Galway City Centre
BER Details
Negotiator
Show more...

































































