Description
Negotiator
Show more...













































| Beds | 3 beds |
| Price | €645,000 |
| Property Type | House |
| Size | 124 meters2 |
| Energy Rating | BER-E1 |
| Refreshed on | Apr 7, 2026 |
| Eircode | D12 A6P0 |
| Group Name | Ray Cooke Auctioneers |
| Sales License Number | 002307 |
Description
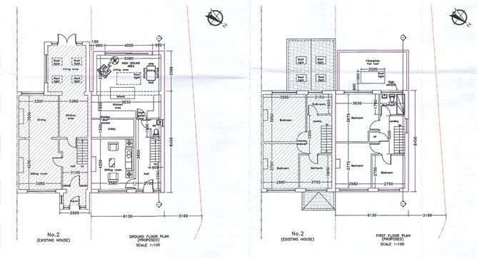
RAY COOKE AUCTIONEERS are delighted to present this HOUSE + SITE WITH FULL PLANNING PERMISSION to the Dublin 12 market. No. 2 is a superb extended 3-bedroom, 2-bathroom end of terrace family home ideally positioned on St. Patrick's Road in this ever popular pocket of Greenhills, Dublin 12. Presented in turn-key condition throughout, this impressive home extends to approximately 124 sq.m and offers bright, spacious, and well proportioned living accommodation, ideal for growing families and discerning buyers alike. The front offers ample off street parking and to the rear lies a large, private garden which is not overlooked, offering an ideal space for outdoor dining, entertaining, or further landscaping. Further enhanced by a sunny south westerly orientation pulling in excellent afternoon and evening sun. The standout feature of this property is the substantial side site, which comes with full planning permission for a 3 bedroom dwelling. This presents an exceptional opportunity for: - Investors - Developers - Families seeking multi-generational living - Those looking to build a second home on site The location is second to none, with a wealth of amenities on your doorstep including local shops and supermarkets, excellent primary and secondary schools, parks and recreational facilities, The Ashleaf Shopping Centre and Sundrive Road nearby. The area is extremely well serviced by public transport routes, providing easy access to Dublin City Centre, while the M50 motorway is just minutes away, making this an ideal location for commuters. Additional Features; - SITE TO SIDE WITH FULL PLANNING PERMISSION - Planning Ref SD03A/0617 - c. 124 sq.m - BER E1 - Extended 3 bed / 2 bath end of terrace home - Excellent condition throughout - Large rear garden not overlooked - Sunny south westerly rear garden - Prime residential location within Greenhills - Excellent transport links and local amenities - Ideal for growing families - Prime for investors/builders - Viewing highly advised Directions; From Walkinstown Roundabout, take the exit onto Greenhills Road. Continue straight and turn right onto St. Peter's Road, then take the next left onto St. Patrick's Road. Number 2 will be located on your right-hand side.
Negotiator
Sales Team 6

Date created: Apr 7, 2026
View this search in machine-readable form:
Download JSON feed of this listing