Description
Accommodation
Features
BER Details
Directions
Negotiator
Show more...















| Beds | |
| Price | POA |
| Property Type | |
| Size | 473.47640282423 meters2 |
| Energy Rating | BER-C2 |
| Refreshed on | Dec 3, 2025 |
| Eircode | D18EY90 |
| Group Name | Lisney Sotheby's International Realty Ballsbridge |
| Sales License Number | 001848 |
Description
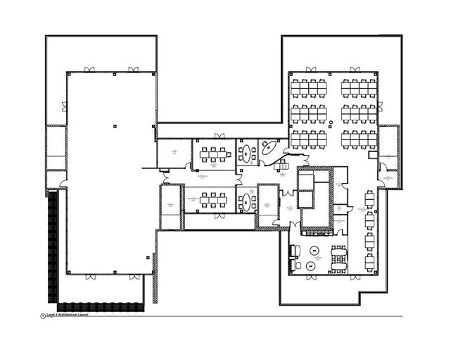
Apex Business Centre is a modern five-storey office building situated in the heart of the Sandyford Business District. The property benefits from a double-height staffed reception, lift access to all floors, and secure basement car parking. The penthouse suite provides fully fitted, turnkey office accommodation, featuring floor-to-ceiling glazing, a private terrace with excellent views, and abundant natural light throughout. The open-plan workspace includes 56 sit & stand desks, each fully wired for power and data, complemented by a generous boardroom and meeting room. This high-quality office suite combines modern functionality with a premium working environment, ideally suited to occupiers seeking a flexible, contemporary workspace in a prime business location.
Accommodation
Features
Full furnished office office with private terrace Large meeting room & board room Large open-plan office area Raised access floors & suspended ceilings VRF air conditioning LED lights Shower rooms on penthouse & basement levels
BER Details
BER: C2
Directions
Negotiator
Colm O' Connor

Full Furnished



















Date created: Dec 3, 2025
View this search in machine-readable form:
Download JSON feed of this listing