Description
Features
BER Details
Viewing Details
Negotiator
Show more...















| Beds | |
| Price | €450,000 |
| Property Type | |
| Size | 145.3 meters2 |
| Energy Rating | BER- |
| Refreshed on | Sep 26, 2025 |
| Eircode | H91XV8P |
| Group Name | O'Donnellan & Joyce Auctioneers Ltd |
| Sales License Number | 001955 |
Description
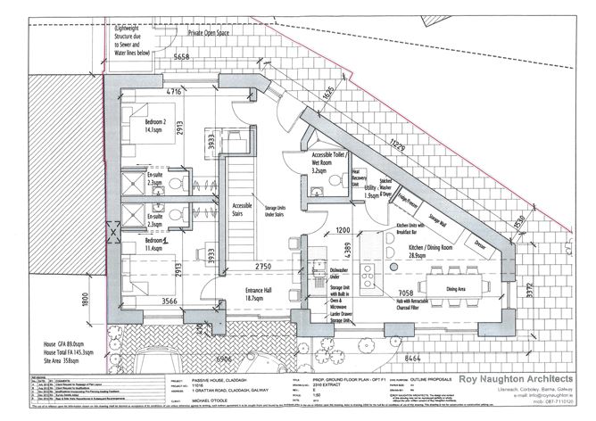
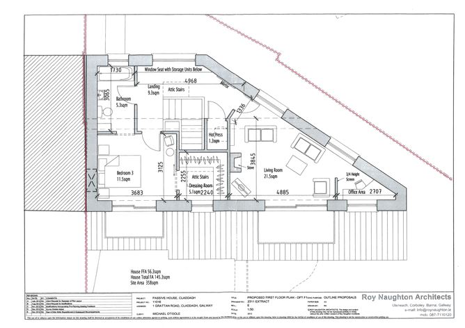
Site with full planning permission Folio GY20151F - planning ref 19/41 O'Donnellan & Joyce Auctioneers are delighted to present to market this excellent opportunity to purchase a site with full planning permission in one of the most sought after locations of Galway City. Situated on Grattan Road in Claddagh, the corner site comprises of approximately 358 sq.m & comes with planning permission giving the opportunity to create a large modern residential residence of approximately 145.3 sq.m. The location of Grattan Road is second-to-none being adjacent to Salthill promenade, across of South Park playing fields, as well as walking distance to both Salthill village & Galway City. Claddagh has long been considered Galway's most popular residential locations due to the strong community, friendly atmosphere, seaside location & variety on offer nearby. Within walking distance are several popular landmarks including Salthill village & promenade, Blackrock diving tower, Galway lawn tennis club & Galway golf club, as well as the vibrant Galway West End & Latin Quarter, giving the best of both worlds. Grattan Road offers a rare opportunity to develop a beautiful home in one of Galway's most famed residential locations. Keep up to-date with NEW PROPERTIES by registering your details on our database For Further details please contact our office on 091-564212 OFFICE OPENING HOURS - MON TO FRI 9AM TO 5:30PM Properties can be viewed on our website www.odj.ie NOTE: These particulars are not to be considered a formal offer. They are for information only and give a general idea of the property. They are not to be taken as forming any part of a resulting contract, nor to be relied upon as statements or representations of fact. Whilst every care is taken in their preparation, neither O?Donnellan & Joyce Auctioneers nor the vendor accept any liability as to their accuracy. Intending purchasers must satisfy themselves by personal inspection or otherwise as to the correctness of these particulars. No person in the employment of O?Donnellan & Joyce Auctioneers has any authority to make or give any representation or warranty whatever in relation to this property.
Features
? Prime residential location ? Site with full planning permission ? Folio GY20151F - planning ref 19/41 ? Salthill & Claddagh promenade on your doorstep ? Walking distance to Galway City
BER Details
BER No: Performance Indicator:
Viewing Details
Strictly by appointment with O Donnellan and Joyce O Donnellan and Joyce on 091 564 212
Negotiator
Colm O'Donnellan



















Date created: Sep 26, 2025
View this search in machine-readable form:
Download JSON feed of this listing
