Description
Accommodation
Features
- Site with FPP for 5 bedroom detached home c 197 SqM
- Most popular location off Castle Avenue & The Stiles Road
- WEST facing rear garden
- TITLE: FREEHOLD
Negotiator
Show more...













| Beds | 5 beds |
| Price | €550,000 |
| Property Type | Site |
| Size | 197 meters2 |
| Energy Rating | BER- |
| Refreshed on | Apr 20, 2026 |
| Eircode | D03 HY45 |
| Group Name | Quillsen |
| Sales License Number | 002250 |
Description
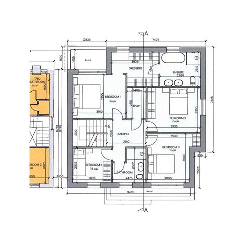
A rare and exciting opportunity to acquire a prime site in the heart of Clontarf, offered with full planning permission for the construction of a substantial, architecturally designed five bedroom, three-bathroom detached residence of true distinction. This exceptional home has been thoughtfully designed to combine elegant proportions with modern family living. Proposed Accommodation: Entrance porch leading to a welcoming hallway with Guest wc Spacious Family room, Home Office, Extensive kitchen/dining (45 sqm) designed as the heart of the home. Separate utility room Five generous double bedrooms - master suite with dressing room and en suite bathroom. 1 further en suite bedrooms, 3 further family bedrooms and main bathroom West-facing rear garden (11m wide and 6.3m deep), perfect for enjoying afternoon and evening sun This is a unique chance to create a bespoke home in one of Dublin`s most sought-after coastal locations, with excellent amenities, transport links, and lifestyle offerings right on your doorstep. Further details and site viewings are available strictly by appointment with Paul Menton and Melanie Brady.
Accommodation
Notice Please note we have not tested any apparatus, fixtures, fittings, or services. Interested parties must undertake their own investigation into the working order of these items. All measurements are approximate and photographs provided for guidance only.
Features
Negotiator
Paul Menton

Garden




Date created: Apr 20, 2026
View this search in machine-readable form:
Download JSON feed of this listing