Description
Show more...
















| Beds | |
| Price | €485,000 |
| Property Type | |
| Size | 582 meters2 |
| Energy Rating | BER- |
| Refreshed on | Mar 27, 2026 |
| Eircode | |
| Group Name | Corry Estates |
| Sales License Number | 001437 |
Description
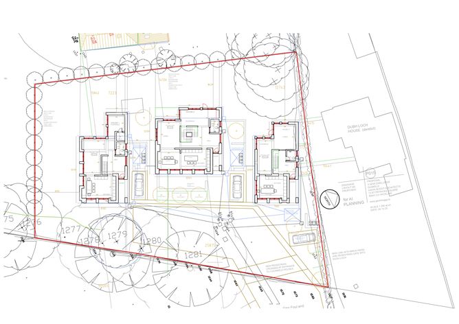
If you are looking to build your own dream home in a private small development of just 3 houses then look no further than this superb site at Dunkeld Drumnigh Road, Portmarnock. Ready to go & with full planning permission in place for a contemporary detached high quality family home (planning reference number F25A / 0448E). The planning permission is for a 4 bedroom 2 storey detached property measuring an impressive 180 square meters / 1,936 square feet. The site measures c. 582 square meters and enjoys a westerly facing rear garden. This wonderful site is one of three available with a stunning location with easy access through Drumnigh Oaks. Superbly positioned just minutes walk from Portmarnock Dart / Train station. All amenities are within close proximity including local shops, schools and commuter transport links. Viewing comes highly recommended.




















Date created: Mar 27, 2026
View this search in machine-readable form:
Download JSON feed of this listing