Description
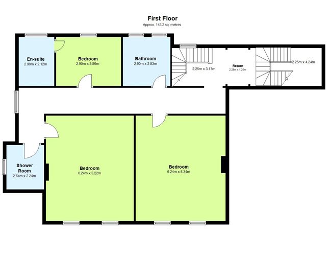
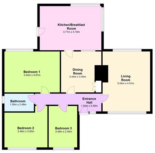
Accommodation
BER Details
Negotiator
Show more...














































| Beds | 8 beds |
| Price | Sold |
| Property Type | |
| Size | 895 meters2 |
| Energy Rating | BER-Exempt |
| Refreshed on | |
| Eircode | |
| Group Name | Sherry FitzGerald Country Homes, Farms & Estates |
| Sales License Number | 002183 |
Description
Seafield House on some 32 hectares (80 acres) is a magnificent and romantic Palladian mansion. Built in the 1730's it has a rich history and a stunning location. Close to Dublin city centre and Dublin international airport, the house and grounds are totally private and have been refurbished and maintained to the highest standards. Set out over some 32 hectares (80 acres) of gardens, walled garden, yew tree walk, arable land, forestry and lake. Mansion approx. 895 sq m / 9,634 sq ft (approx.), Coach and stable yard with staff flat and gate lodge. Ireland has a rich history of magnificent country houses, yet few are located as conveniently as Seafield House. Just 15km from Dublin's city centre, and 8km to Dublin international airport, you'll find yourself in a peaceful world, surrounded by forestry, parklands, and with a view across the estuary to Malahide and the mountains beyond. The Grade 1 listed house itself is a strikingly elegant and romantic five bay three storey over garden level villa. Seafield House is thought to have been built by leading Classical architect Sir Edward Lovett Pearce, the leading exponent of Palladianism in Ireland and architect of Castletown House. Pearce died in 1733, and was also the designer of the Irish Houses of Parliament (now the Bank of Ireland building at College Green). Whether directly involved or not, Seafield is clearly in debt to Pearce's elegance and style. The original house was built in approximately 1730, the year Pearce became Surveyor General of Ireland. Just over one hundred years later, in 1857, a “west wing” was added, along with a striking Italianate tower, adding both balance and intrigue to the elevation. A coach and stable yard, complete with clock tower was also incorporated at this point. In this way, Seafield House combines the best of two worlds: the sophisticated grace and symmetricality of the Georgian period, for which Dublin's historic core is righty famed; and the warmth and wit of the Victorians. Add to that a fully contemporary overhaul by the present owners, and you have a timeless home to last a lifetime. Inside, and setting the scene, a key feature is the extraordinary entrance hall, which runs the full width of the building, linking the building to the gorgeous countryside and creating a magical space of light, and drama. Including a galleried walkway at first floor level and incorporating the original panelling, with wall paintings of figures from Classical mythology, this is a space to conjure with. Seafield House was originally built for Benedict Arthur, sometimes spelled Arthure, who had been High Sheriff of Dublin. From him, it passed into the ownership of the Hely-Hutchinson family, who attained great significance in Irish political history. The house was then sold to Sir Robert and Lady Goff, and thence to the present owners. It is now awaiting the next chapter in its illustrious story. A House Rich With History The full extent of the Hely-Hutchinson family fortunes date from the a series of marriages, most notably with the Hatch family, for whom Hatch Street in Dublin is named. In 1834, Sophia Synge Hutchinson married her cousin, a naval captain, the Hon Coote Hely-Hutchinson, bringing the estates of Seafield and nearby Lissen Hall in Swords into the same family ownership, and including some 700 acres. A donation by the descendants of the family of some 110 boxes of letters, legal papers, photographs and family memorabilia to the archives of Fingal County Council, give a fascinating insight in to their lives, and also the life of Seafield House. The letters tell of how, during the first World War, two Hely-Hutchinson brothers, Coote and Dick, went off to war, while their father John fought to preserve the family's wealth. They also paint a vivid picture of the decline of the Anglo Irish landed gentry, and point to a possible fate for Seafield, and yet the house survived, magnificently. This was thanks to Coote Hely-Hutchinson, who diligently farmed the land, and gained in standing and public opinion in post-Independence Ireland. He worked as a councillor and also served on the board of the Royal Dublin Society, and contributed to philanthropic and social activities. When Coote died in 1930, W.T. Cosgrave, the first elected head of the Irish Free State, wrote to his widow, Julia, saying “his country will miss the splendid public services and activities which he contributed to her welfare for so many years.” Julia moved to nearby Newport House and Seafield then came into the ownership of Sir Robert and Lady Goff. The current owners purchased Seafield in 1996, and have since lavished care and attention on the property, retaining original features, while completely rewiring, replumbing, reroofing, updating the windows and bathrooms and restoring the façade. A new flight of granite steps sweeps up to the front door, taking you into the timeless world of Seafield. Inside Seafield House Fully refurbished, and sensitively restored and maintained by a team of passionately committed artisans, who have come to know and love Seafield House as much as the owners, the interiors are a triumph of restoration and upgrading. The hall paintings, from the school of William van der Hagen, are some of the earliest of their kind in Ireland. Meanwhile, the Adam fireplace takes pride of place in the dining room, while a magnificent fireplace rescued from a castle at Lough Lomond makes an impressive focal point in the drawing room. When the current owners have parties, this beautiful room makes a perfect spot for the bar. Tall windows, deeply recessed, look out over the woodlands, parklands and across the estuary. Wood panelling and delicately picked out plasterwork predominate in the Georgian core of the house, and continues upstairs in the master suites. There are eight bedrooms in all, including a rambling set of suites on the very top floor, which generations of children have enjoyed making their own. One of the delights of the house is to be found in its different moods, which nonetheless blend to a seamless whole. There is the elegant, yet comfortable formality of the principal rooms in the Georgian core. This extends through the magnificent hallway, two principal reception rooms and dining room. Here, the paintwork sensitively picks out the original panelling and plasterwork, to museum standards, even though such is the warm and welcoming atmosphere, one feels immediately at home. Then, a bright kitchen provides the heart of the Victorian wing, and this part of the house also hosts a peaceful study, where you can deal with the world, while feeling quite at peace from it. Off the kitchen is a scullery, and an intriguing flight of stairs. This takes you up into the tower, where you can revel in commanding views of the surrounding countryside. The lower ground floor includes a wine cellar, laundry room, further cellars and a large den that could become a gym, games room or home cinema. Choose your mood through the bedrooms. The master suite has glorious views, deep set windows, a magnificent fireplace and large dressing room, but you're spoiled for choice with different views, and aspects across all eight bedrooms. These aspects are integral to the charm of Seafield House as from the sweeping driveway to the elegant forecourt, complete with gravel area and feature fountain, this is a house that is truly at home in its peaceful eighty acre setting. A Remarkable Setting Planting six hundred trees, the current owners have taken every care to continue the story of Seafield outside as well as in. There are approximately fifteen acres of woodland, a south facing walled garden, which gives total privacy, and a kitchen garden, with polytunnel, so you can enjoy the fruits of your grounds at dinner each evening. Mature trees surround the property and bound the sweeping avenue. As you round the avenue, the first impression of the house and setting is breath-taking. There are layers of history in the landscaping too. A yew walk echoes the famous one at Lismore Castle in Co Waterford, while stone steps give clues to more walks throughout the grounds. Discover statues of eagles on the top of walls, guarding the occupants; and sit, as the owners like to do, on moonlit evenings, gazing at the track of silver on the calm estuary just outside your own front door. Seafield House also has its own gate lodge, and a very fine coach and stable yard complete with a traditional blue-faced stable clock all in good working order. The coach yard includes a fully fitted apartment, which would make an ideal staff flat. There is also a barn, fine arched storage areas, and a series of stables, loose boxes and outbuildings, giving plenty of food for thought for future owners, whether equestrian lovers or simply considering the possibilities of all this additional space. Whatever its ultimate use, the coach yard provides the perfect balance to the house itself, completely in keeping with its status and history. To the front of the house, there are formal gardens, with a fountain and splendid views to savour over the estuary. The land to the front is then laid out in grass. To the rear of the house there are further formal gardens. The land to the rear is in tillage, with some 15 acres of forestry, which gives great privacy and seclusion.
Accommodation
BER Details
Exempt
Negotiator
David R Blanc





















Date created: May 16, 2018
View this search in machine-readable form:
Download JSON feed of this listing