Description
Accommodation
BER Details
Show more...
























| Beds | 4 beds |
| Price | Sold |
| Property Type | |
| Size | meters2 |
| Energy Rating | BER-F |
| Refreshed on | |
| Eircode | X42HC43 |
| Group Name | Denise Radley Auctioneers |
| Sales License Number | 001618 |
Description
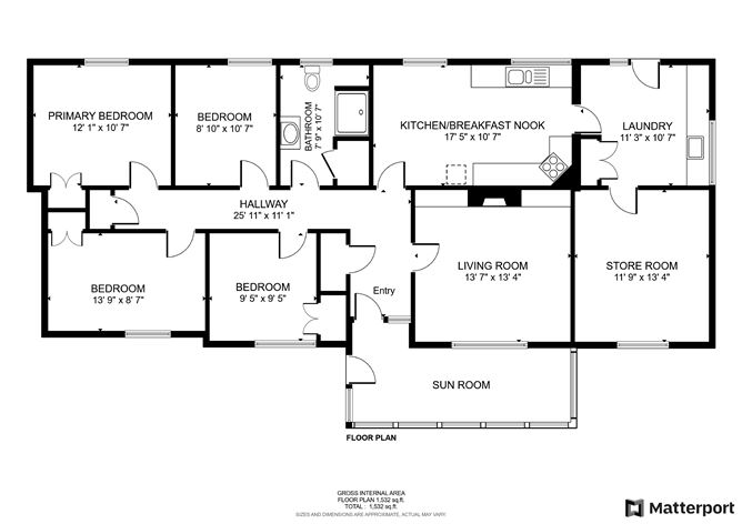
Looking for a home with potential.... Look no further. This is a detached stand alone bungalow sitting on 0.5 of an acre. It is a short walk from Stradbally Village and Ballyvooney Cove. This 1532 sqft four bedroom property is ideally positioned to take full advantage of the various sustainable energy Ireland grants that provides amazing reliefs to increase the energy efficiency of a building. There is an internal garage. There are two outbuildings located at the end of the garden. More information can be found here: https://www.seai.ie/grants/home-energy-grants/individual-grants/ Stradbally is a pretty village in Co. Waterford on the south coast of Ireland. It is surrounded by peaceful countryside & secluded beaches. This home is perfect for families. The harbour town of Dungarvan is a 15 min drive away. Access to Waterford Greenway at Durrow is only a 5 min drive away. Cycle the stunning off road 10km stretch from Durrow to Dungarvan taking in a dimly lit tunnel, viaduct and views of the mountains and ocean. There are possibilities to kayak on The Copper Coast, hike the Comeragh mountains or leisurely strolls on the beach. This home has everything to offer, from location, beaches, greenway, mountains, schools, churches and easy access to all amenities.
Accommodation
Porch Living Room Kitchen/Dining Utility area Internal garage Bathroom Bedroom 1 Bedroom 2 Bedroom 3 Bedroom 4
BER Details
BER: F BER No.16320656 Energy Performance Indicator:399.51 kWh/m²/yr

Parking




















Date created: Apr 19, 2023
View this search in machine-readable form:
Download JSON feed of this listing