Description
Accommodation
Features
BER Details
Show more...









































| Beds | 4 beds |
| Price | €650,000 |
| Property Type | |
| Size | 295 meters2 |
| Energy Rating | BER-C3 |
| Refreshed on | Oct 2, 2025 |
| Eircode | X91 E2X2 |
| Group Name | Palmer Auctioneers |
| Sales License Number | 001713 |
Description
Constructed in 2002 to the highest standards, this outstanding detached family residence features an appealing cut stone façade and offers approximately 295 square metres (3,175 square feet) of accommodation. Situated on an exceptionally private site of approximately 0.19 hectares (0.46 acres) at the end of a cul-de-sac, this property offers superb views over Passage East and the River Suir towards the Minaun and Cheekpoint, while being conveniently located just 9 kilometres from Waterford city.
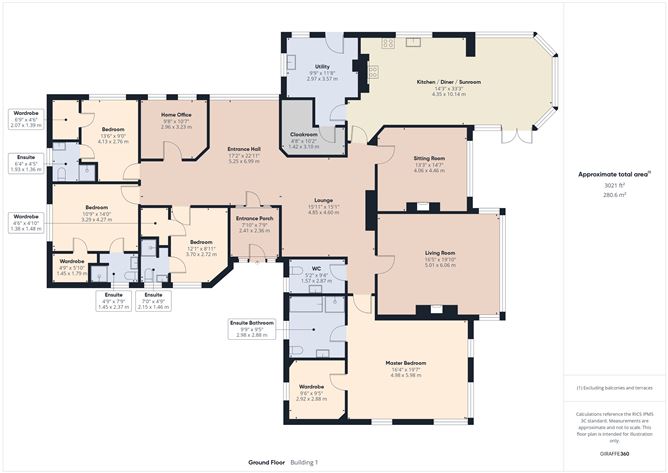
Accommodation
Porch with quarry tiling and half glazed door leads to a bright and airy tiled entrance hall with 13’ ceilings, the lounge area boasts a gas fireplace set in a marble surround, creating a warm and inviting atmosphere. Large kitchen / diner with terracotta tiling and antique pine units with a black polished granite worktops and a Stanley range, a stunning triple-aspect sunroom offers panoramic river views, oak flooring, and French doors that open onto a sun-drenched patio —perfect for relaxing or entertaining. To the rear is a well-appointed utility room as well as a cloakroom and hot press. There is also a tiled Guest WC. The property features two main reception rooms: a cosy sitting room with a stove, and a larger living room that includes a vaulted ceiling, oak flooring, open fireplace, and two large picture windows overlooking the river. There are four double bedrooms, all are ensuite and come with walk in wardrobes. The impressive dual aspect master suite has superb views over the river and comes with an extensive shelved walk-in wardrobe as well as an ensuite bathroom. A home office completes the accommodation. Outside, an expansive patio area provides the perfect vantage point for taking in the magnificent river views, enclosed by a sun-warmed low natural stone wall. Discreet external lighting sets the mood for evening gatherings, while efficient electrical heating ensures the space remains comfortable throughout the seasons. The highlight is a luxurious hot tub, ideal for unwinding at the end of the day. The surrounding private gardens are screened by mature hedging with a low natural stone wall to the front. To the side is a double garage with boiler house. Large tarmacadam drive to front accessed by electric security gates with a separate pedestrian entrance.
Features
Oil fired central heating, hardwood and uPVC double glazed windows, alarm, C3 BER, pitch pine doors throughout.
BER Details
BER: C3 BER No.111513792 Energy Performance Indicator:219.04 kWh/m²/yr





















Date created: Oct 2, 2025
View this search in machine-readable form:
Download JSON feed of this listing
