Description
Accommodation
BER Details
Negotiator
Show more...




















| Beds | 3 beds |
| Price | Sold |
| Property Type | |
| Size | 152 meters2 |
| Energy Rating | BER-F |
| Refreshed on | |
| Eircode | P75 TR99 |
| Group Name | Sherry FitzGerald O'Neill West Cork |
| Sales License Number | 004158 |
Description
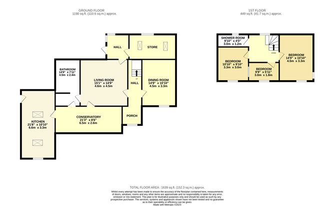
Traditional West Cork residential farm holding set on 13 acres approximately of untouched south facing lands on the Mizen Peninsula. The property enjoys a peaceful setting and includes an extended two storey traditional farmhouse in need of renovation. There is also a split level traditional barn, a range of stables and a loft which was once home to a local shop. The house is a two storey farmhouse that is full of original character and can be upgraded into a comfortable family home. The accommodation includes entrance porch and hall, sitting room, kitchen / dining room, conservatory, bathroom and utility area. There are 3 bedrooms and a shower room upstairs. The 13 acres of lands appear to be fertile and are ideal for a small West Cork organic farm enterprise. The property is adjoining a local road off the main Ballydehob to Durrus route and is within a 30 minute drive of both Bantry and Skibbereen. The house is serviced with oil fired central heating, a deep water well, electricity and a septic tank.
Accommodation
BER Details
BER: F BER No: 116403429 Energy Performance Indicator: 404.98 kWh/m2/yr
Negotiator
Niamh Moloney





















Date created: May 23, 2023
View this search in machine-readable form:
Download JSON feed of this listing