Description
Accommodation
Features
- Central Location
- Modern Develpment
- Newly fitted bathroom and kitchen
- New ATC lifestyle electric thermal radiators.
- Excellent Transport links
BER Details
Negotiator
Show more...















| Beds | 2 beds |
| Price | Sold |
| Property Type | Apartment |
| Size | 75 meters2 |
| Energy Rating | BER-D2 |
| Refreshed on | |
| Eircode | |
| Group Name | Sherry FitzGerald City Centre |
| Sales License Number | 002183 |
Description
Sherry FitzGerald are delighted to present no. 3, 76 Dame Street to the market. Situated on the third floor of this block of contemporary modern apartments, Number 3 is smartly laid out and presented with a great sense of style and flair. Having been renovated recently, this apartment offers the proverbial 'turnkey' opportunity for the new purchaser and boats a modern bathroom, wood flooring throughout and a fully equipped kitchen. With an extremely central location, this well-presented property is sure to appeal to investors, downsizers and those looking for a trendy city pad. The accommodation in brief comprises; entrance hall with access to hot press and storage press, modern shower room just off, a bright open plan kitchen/dining room and two large double bedrooms, with bedroom 1 providing access to the terrace. New ATC lifestyle electric thermal radiators with LCD display and modern touch screen design, have also been installed throughout the apartment. Dame Street is one of Dublin's main entertainment districts, and this vibrant location could not be better, offering excellent restaurants, bars, shops and businesses. The property is within easy reach of Trinity college, DIT, The Royal College of Surgeons, St Stephen's Green and many of Dublin main tourist attractions. The area benefits from excellent public transport services including the DART, LUAS and many regular bus routes, Dublin Bike stations and Rail services at Connelly or Heuston station.
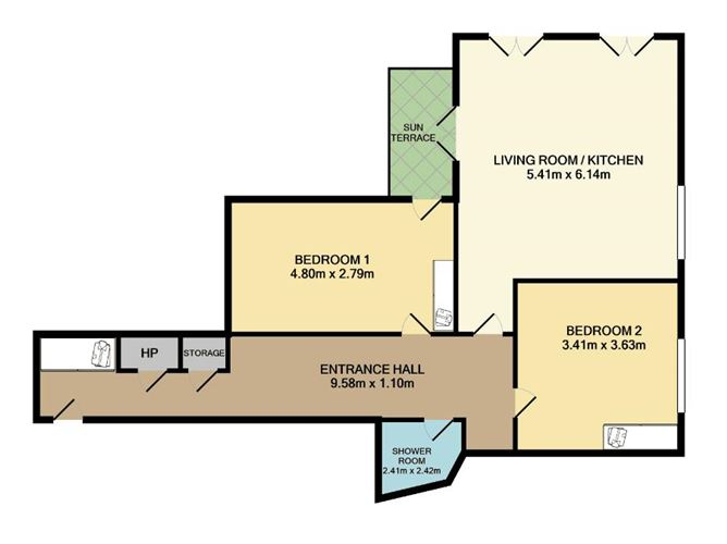
Accommodation
Entrance Hall - 9.58m x 1.10m Wood flooring, built in wardobes electric heater Storage - Hot Press - Shelved units. Bedroom 1 - 4.80m x 2.79m Wood flooring, built in wardrobe, access to south facing balcony, electric heater Bedroom 2 - 3.63m x 3.41m Wood flooring, built in wardrobe, window to side, electric heater Shower Room - 2.42m x 2.41m Tiled floor to ceiling, heated towel rail, wc, whb, shower unit. Living Room / Kitchen - 6.14m x 5.41m Wood flooring, double doors leading to sun terrace, dishwasher, 4 ring electric hob, fridge, electric heater
Features
BER Details
BER: D2 BER No: 106938012 Energy Performance Indicator: 270.43 kWh/m2/yr
Negotiator
Samuel Agar

Date created: Jan 15, 2022
View this search in machine-readable form:
Download JSON feed of this listing