Description
Features
BER Details
Show more...













































| Beds | 3 beds |
| Price | Sale Agreed |
| Property Type | |
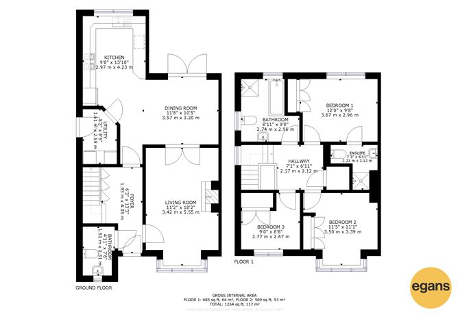
| Size | 117 meters2 |
| Energy Rating | BER-C1 |
| Refreshed on | |
| Eircode | N91YN83 |
| Group Name | Egans |
| Sales License Number | 001674 |
Description
This beautiful detached family home is ideally located in the village of Killucan only minutes from the M4/M6 at Kinnegad and c. 16km from Mullingar. The accommodation comprises 3 spacious bedrooms (1 Ensuite), Kitchen/Dining Room, Sitting Room, Utility Room, Main Bathroom and WC all of which is presented in good condition. The property which is set in a quite cul de sal location in the estate has oil fired central heating with the added bonus of a sold fuel stove in the sitting room. Killucan is a growing village with easy links to Dublin, Galway and all the midland towns of Mullingar, Athlone and Tullamore. There is a modern primary school located across from the estate with a variety of secondary schools also within easy driving range. This represents a great opportunity for first time buyers to acquire a quality family home in a great location.
Features
Stylish Detached Home in Great Location only c. 6km to M4/M6 at Kinnegad Ideal Opportunity for first time buyer Open Plan Kitchen Dining Area Solid fuel stove in Sitting Room Overlooking Green Area to Front Walking distance to school, shops, and Pharmacy Only 1km from Royal Canal Greenway at Thomastown Harbour
BER Details
BER: C1

















Date created: Jan 18, 2023
View this search in machine-readable form:
Download JSON feed of this listing