Description
Accommodation
BER Details
Negotiator
Show more...



























| Beds | 3 beds |
| Price | €200,000 |
| Property Type | |
| Size | 90 meters2 |
| Energy Rating | BER-B3 |
| Refreshed on | Dec 2, 2025 |
| Eircode | Y34DD73 |
| Group Name | DNG McCormack Quinn |
| Sales License Number | 004222 |
Description
Discover relaxed coastal living at 5 Sandeel Cottages, a delightful 3-bed detached home nestled within the well-established Hookless Village community. This charming property enjoys a serene setting close to golden beaches, seaside cliff walks, and the historic Hook Lighthouse. Whether you're seeking a family holiday base or a cosy year-round home, this cottage captures the essence of tranquil living on the Hook Peninsula. A very well presented home with excellent layout briefly comprising ground floor entrance hallway, living room, kitchen dining, ground floor bedroom with ensuite, first floor landing, bathroom & 2 bedrooms. Outside parking and outdoor living space which includes decking area and gardens. The property is in a sought-after location, ideal as holiday home or for those considering downsizing to the countryside. Viewing by appointment with Joe Bishop Auctioneer. Virtual tour online.
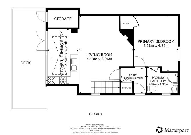
Accommodation
Entrance Hall - 1.96m x 1.95m Living Room - 5.96m x 4.13m feature stove, open plan to kitchen area. Kitchen Dining Room - 4.27m x 2.34m Feature fitted kitchen with bright glazed window space. Bedroom main - 4.26m x 3.38m Double bedroom with addtional storage, door to ensuite. Ensuite Bathroom - 2.37m x 1.95m wc whb shower. Recently upgraded. Landing - Bedroom 2 - 3.92m x 2.04m Double bedroom space. Bedroom 3 - 3.94m x 3.29m Double bedroom space. Bathroom main - 2.13m x 2.09m wc whb shower. Recently upgraded.
BER Details
BER: B3 BER No: 10227618
Negotiator
Joe Bishop




















Date created: Dec 2, 2025
View this search in machine-readable form:
Download JSON feed of this listing