Description
BER Details
Show more...




















| Beds | |
| Price | €245,000 |
| Property Type | End of Terrace House |
| Size | meters2 |
| Energy Rating | BER-D2 |
| Refreshed on | Oct 2, 2025 |
| Eircode | X91D5C3 |
| Group Name | Barry Murphy Auctioneers Ltd |
| Sales License Number | 001104 |
Description
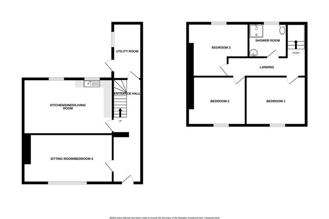
New to the market is this recently renovated three-bedroom end-of-terrace property, ideally located in the sought-after Railway Square area�just a short stroll from Waterford City Centre and all local amenities. Enjoy the convenience of city living with SETU�s College Street Campus, the Odeon Cinema, and Tesco Poleberry all less than five minutes away on foot. A range of excellent primary and secondary schools, including Mount Sion, Presentation, De La Salle, and Newtown, are all within a 1015 minute walk. The ground floor offers flexible living space with a generously sized living room (which could easily serve as a fourth bedroom), an open-plan kitchen/dining/living area, and a utility room. Upstairs, you'll find three large double bedrooms and a modern family shower room. Additional features include electric heating, PVC double-glazed windows throughout and a low maintenance and spacious west-facing rear garden, perfect for outdoor entertaining or relaxing. Viewing is highly recommended and can be arranged through Sole Agents Barry Murphy Auctioneers. Ground Floor Entrance Hall: 7.13m x 1.75m. Laminate floor. Sitting Room/Bedroom 4: 3.12m x 5.72m. Laminate floor. Kitchen/Dining/Living: 3.31m x 5.85m. Tiled floor, fitted kitchen with integrated oven \u0026 hob. Utility Room: 3.64m x 1.82m. Lino floor, plumbed for washing machine, door to rear garden. First Floor Bedroom 1: 3.12m x 3.72m. Laminate floor. Bedroom 2: 3.14m x 3.67m. Laminate floor. Bedroom 3: 3.44m x 3.98m. Laminate floor. Shower Room: 2.25m x 2.5m. Fully tiled, WC, wash hand basin, electric shower.
BER Details
BER: D2









Date created: Oct 2, 2025
View this search in machine-readable form:
Download JSON feed of this listing