Description
Accommodation
Features
BER Details
Show more...








































| Beds | 4 beds |
| Price | Sold |
| Property Type | Semi-Detached House |
| Size | 207 meters2 |
| Energy Rating | BER-C2 |
| Refreshed on | |
| Eircode | D15 YT2D |
| Group Name | Herbert & Lansdowne Estate Agents |
| Sales License Number | 001887 |
Description
Viewing Saturday 02/12 between 10:30am - 11:30am 49 Roselawn Road is a beautiful 4-bedroom house which has been significantly extended and upgraded over time by its current owners. Spanning approx. 207sqm of internal floor space it offers modern yet comfortable living spaces with a particular highlight being the modern kitchen overlooking the South facing garden which is meticulously maintained and stretches all the way to the canal. Upon entering the property, you are immediately drawn to the extension which incorporates the kitchen, additional living area and dining space which is flooded with natural light from south facing floor to ceiling windows. The property also benefits from a studio apartment attached to the rear of the house which can also be used as a kids den with its own bathroom. At the front of the house there is a formal living room and also a playroom. Upstairs there are 4 good size bedrooms with the primary bedroom(ensuite) having been extended along with a family bathroom. The Attic has also been tastefully converted. Location: The house is ideally situated close to all local amenities and has great public transport links on the doorstep: Less than 5 minutes’ walk to Castleknock Train Station Close to Castleknock Road which is serviced by several bus routes Less than 800m from Roselawn SC Easy walking distance to Castleknock Village and Blanchardstown Village Several Primary and Secondary Schools nearby
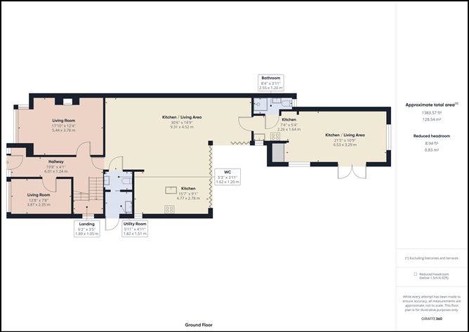
Accommodation
KITCHEN: 4.77m x 2.78m Recessed lighting, high quality fitted kitchen, stainless steel sink, area fully plumbed, integrated fridge freezer, integrated dishwasher, oven, hob, extractor fan, island unit, bi folding patio doors leading to garden area, ceramic tiles. LIVING/DINING ROOM: 9.31m x 4.52m Recessed lighting, wooden floors, bi folding doors leading to patio area. UTILITY: 1.82m x 2.78m Light fitting, fitted units, stainless sink, area fully plumbed, ceramic tiles, door leading to garden area. GUEST WC: 1.62m x 1.20m Light fitting, W.C., W.H.B., floor tiles. SITTING ROOM: 5.44m x 3.78m Light fittings, feature gas fireplace with a wrought iron insert and polished hearth, features a bay window, wooden floors. PLAYROOM: 3.87m x 2.35m Light fitting, wooden floors. STUDIO: 6.53m x 3.29m Fitted kitchen, in built wardrobes, bathroom with shower, living room/bedroom with wooden floors, double doors leading to garden, storage. HALL WAY: 6.01m x 1.24m Light fitting, downstairs storage, wooden floors. LANDING: 3.29m x 1.59m Light fitting, hot press with immersion and shelving, wooden floors. BEDROOM 1: 5.64m x 2.87m Light fitting, fitted wardrobes, carpets. ENSUITE: 1.17m x 2.57m Light fitting, extractor fan, part wall tiling, floor tiling, W.C., W.H.B., shower, towel heater. BEDROOM 2: 3.11m x 2.43m Light fitting, carpets, blind. BEDROOM 3: 2.57m x 4.12m Light fitting, fitted wardrobes, blind, carpets. BEDROOM 4: 3.62m x 3.40m Light fitting, fitted wardrobes, blind, carpets. BATHROOM: 1.75m x 2.09m Light fitting, wall tiling, floor tiling, W.C., W.H.B., shower, bath. ATTIC: Wooden floors, velux windows, under eves storage. Size: Approx. 207 square meters/2,228 square foot Heating: Gas Fired Central Heating Parking: Off street parking Disclaimer: The above particulars are issued by Herbert & Lansdowne Estate Agents on the understanding that all negotiations are conducted through them. Please note that we have not tested any apparatus, fixtures, fittings, or services. Interested parties must undertake their own investigation into the working order of these items. All measurements are approximate and photographs provided for guidance only.
Features
4-bedroom house of approx. 207sqm Beautifully extended and remodelled Large south facing rear garden Off street parking for 2 cars Separate garden workshop Studio apartment Close to transport links Amenities on your doorstep
BER Details
BER: C2 BER No.100600303 Energy Performance Indicator:193.09 kWh/m²/yr

Parking
En-suite
Central Heating
Garden


Date created: Nov 25, 2022
View this search in machine-readable form:
Download JSON feed of this listing