DNG Brian MacMahon are delighted to bring to the market this fantastic 3-bedroom semi-detached home, located just off the Galway Road within walking distance of the town centre and lake. The property has a tarmac driveway with parking to the front and lawn garden and patio to the rear.
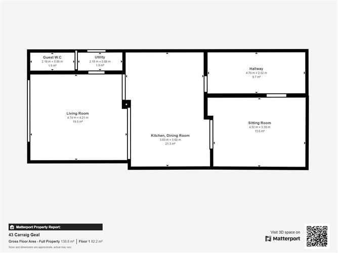
The property comprises of a bright entrance hall, immediately to your left is the cosy and bright sitting room with feature fireplace, with double doors leading to the spacious kitchen/dining area which boasts shaker style fitted units which utilise the space well, creating an abundance of storage space for today's modern family. The light filled living room is truly the heart of this home with french doors leading to the rear garden. Complementing the kitchen is a compact utility room and a guest w.c.
Upstairs off the landing are 3 bedrooms with the master boasting an ensuite and fitted wardrobes, the beautifully presented family bathroom completes the accommodation on this floor.
Loughrea is a thriving market town with every type of amenity available and because of the wonderful central location of 43 Carriag Geal, they are all on your doorstep choice of great childcare facilities, both primary and secondary schools, supermarkets, boutiques restaurants, post office, golf club to name a few. The excellent transport links with easy access to the M6 motorway: Galway is only 35km; Athlone 60km and Limerick 85km, all are an easy commute. Loughrea also has a regular bus service connecting Galway and Dublin.
SERVICES: Mains
HEATING SYSTEM: OFCH
PROPERTY SIZE : 117m²
PROPERTY AGE: 2007, extended 2014
BUILDING ENERGY RATING: C2 115356180 192.98 (kWh/m2/yr) 48.27 (kgCO2/m2/yr) Exp:
19-07-2032
Accommodation
Entrance Hall - 4.8m x 2m
• Wooden flooring
Sitting Room - 5m x 3.5m
• Wooden flooring • Feature fireplace with open fire • Double doors leading to kitchen/dining room
Kitchen Dining Room - 5.6m x 3.5m
• Wooden flooring • Shaker style fitted kitchen • Tiled splashback • 1.5 sink
Living Room - 4.8m x 4.1m
• Wooden flooring • French doors • Velux windows
Utility Room - 2.1m x 0.9m
• Wooden flooring • Plumbed for washing machine • Back door
Guest W.C. - 2.1m x 0.9m
• Wooden flooring • W.C • W.H.B
Landing - 3.7m x 1.9m
• Wooden flooring • Hot Press
Master Bedroom - 4.3m x 3.2m
• Wooden flooring • Fitted wardrobes
Ensuite Bathroom - 2.7m x 1m
• Tiled floor to ceiling • W.C. • W.H.B • Shower
Bedroom 2 - 3.4m x 3.1m
• Wooden flooring
Bedroom 3 - 3m x 2.2m
• Wooden flooring
Bathroom - 2.2m x 2.1m
• Tiled floor to ceiling • W.C. • W.H.B • Bath with shower over
Features
3 Bedroom (one ensuite) Semi-Detached House
2 Reception Rooms
Enclosed rear garden, with patio & shed
Walking distance to all amenities
Easy access to Galway, Athlone & Limerick via the motorways
BER Details
BER: C2
BER No: 115356180
Energy Performance Indicator: 192.98
Negotiator
Brian MacMahon
43 Carraig Geal, Loughrea, Co. Galway, H62 YX49
3 beds
3 baths
117 m²
Semi-Detached House
Features
Garden
Description
DNG Brian MacMahon are delighted to bring to the market this fantastic 3-bedroom semi-detached home, located just off the Galway Road within walking distance of the town centre and lake. The property has a tarmac driveway with parking to the front and lawn garden and patio to the rear.
The property comprises of a bright entrance hall, immediately to your left is the cosy and bright sitting room with feature fireplace, with double doors leading to the spacious kitchen/dining area which boasts shaker style fitted units which utilise the space well, creating an abundance of storage space for today's modern family. The light filled living room is truly the heart of this home with french doors leading to the rear garden. Complementing the kitchen is a compact utility room and a guest w.c.
Upstairs off the landing are 3 bedrooms with the master boasting an ensuite and fitted wardrobes, the beautifully presented family bathroom completes the accommodation on this floor.
Loughrea is a thriving market town with every type of amenity available and because of the wonderful central location of 43 Carriag Geal, they are all on your doorstep choice of great childcare facilities, both primary and secondary schools, supermarkets, boutiques restaurants, post office, golf club to name a few. The excellent transport links with easy access to the M6 motorway: Galway is only 35km; Athlone 60km and Limerick 85km, all are an easy commute. Loughrea also has a regular bus service connecting Galway and Dublin.
SERVICES: Mains
HEATING SYSTEM: OFCH
PROPERTY SIZE : 117m²
PROPERTY AGE: 2007, extended 2014
BUILDING ENERGY RATING: C2 115356180 192.98 (kWh/m2/yr) 48.27 (kgCO2/m2/yr) Exp:
19-07-2032
Accommodation
Entrance Hall - 4.8m x 2m
• Wooden flooring
Sitting Room - 5m x 3.5m
• Wooden flooring • Feature fireplace with open fire • Double doors leading to kitchen/dining room
Kitchen Dining Room - 5.6m x 3.5m
• Wooden flooring • Shaker style fitted kitchen • Tiled splashback • 1.5 sink
Living Room - 4.8m x 4.1m
• Wooden flooring • French doors • Velux windows
Utility Room - 2.1m x 0.9m
• Wooden flooring • Plumbed for washing machine • Back door
Guest W.C. - 2.1m x 0.9m
• Wooden flooring • W.C • W.H.B
Landing - 3.7m x 1.9m
• Wooden flooring • Hot Press
Master Bedroom - 4.3m x 3.2m
• Wooden flooring • Fitted wardrobes
Ensuite Bathroom - 2.7m x 1m
• Tiled floor to ceiling • W.C. • W.H.B • Shower
Bedroom 2 - 3.4m x 3.1m
• Wooden flooring
Bedroom 3 - 3m x 2.2m
• Wooden flooring
Bathroom - 2.2m x 2.1m
• Tiled floor to ceiling • W.C. • W.H.B • Bath with shower over
Features
3 Bedroom (one ensuite) Semi-Detached House
2 Reception Rooms
Enclosed rear garden, with patio & shed
Walking distance to all amenities
Easy access to Galway, Athlone & Limerick via the motorways
BER Details
BER: C2
BER No: 115356180
Energy Performance Indicator: 192.98