Description
Accommodation
BER Details
Negotiator
Show more...



























| Beds | 3 beds |
| Price | Sold |
| Property Type | |
| Size | 120 meters2 |
| Energy Rating | BER-C2 |
| Refreshed on | |
| Eircode | V93FP63 |
| Group Name | DNG Timothy O'Sullivan |
| Sales License Number | 001991 |
Description
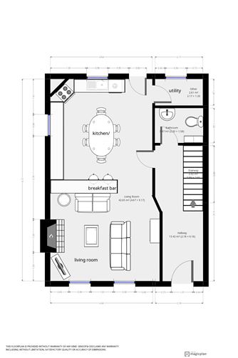
No 30 Forelands is a lovely 3-bedroom end of terrace property located in a quiet development within easy walking distance of Kenmare town. Recently upgraded, the property enjoys bright spacious accommodation throughout and comprises of a large open plan kitchen / dining/ living room, utility and guest WC on the ground floor with 3 spacious bedrooms (one en-suite) and a family bathroom on the first floor. Enjoying the benefits of a corner site, the property offers huge potential making it an ideal home or investment property for those seeking a quiet but accessible location central to all local amenities. 3-bedroom end of terraced house conveniently located close to all amenities 5 min walk into Kenmare town centre Presented in excellent condition Floor area of 120 sq. m (1292 sq. ft.) Feature natural stone fireplace with multi fuel stove & heat transfer system Fully fenced private rear garden Rear garden shed/ workshop Gas fired central heating Outside Communal parking area to the side with private garden to the rear with side entrance, garden shed/ workshop. General: Services: Mains water & sewerage, gas fired central heating Broadband: Fibre broadband available Land Registry Folio: KY66558F
Accommodation
BER Details
BER: C2 BER No: 106569510 Energy Performance Indicator: 187.59
Negotiator
Reapit









Date created: Dec 24, 2020
View this search in machine-readable form:
Download JSON feed of this listing