Description
Features
BER Details
Show more...










































| Beds | 3 beds |
| Price | Sold |
| Property Type | |
| Size | 91 meters2 |
| Energy Rating | BER-F |
| Refreshed on | |
| Eircode | D03 K6P2 |
| Group Name | Auctioneera |
| Sales License Number | 003912 |
Description
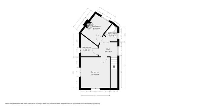
https://www.auctioneera.ie/property/28-fairview-avenue-upper-fairview-dublin-d03-k6p2 Important note: Details of upcoming viewings and latest offers are available at the Auctioneera website link above. Auctioneera is delighted to present 28 Fairview Avenue Upper, Fairview in Dublin. Located in the sought-after area of Fairview, this property offers a superb location, excellent transport links, and an array of amenities nearby, this property is an ideal choice for families or looking for a comfortable and modern home. Upon entering the property, you are greeted by a bright and welcoming entrance hall. The hallway opens up into a spacious living room, flooded with natural light from the large window. The quality carpeted flooring, neutral colour scheme, and modern fireplace create an inviting and cosy atmosphere, perfect for relaxing or entertaining friends and family. The kitchen is fitted with modern appliances and ample storage space with a sleek countertop and a beautiful tiled floor. The window provides lots of natural light and keeps the room bright and airy. Adjacent to the kitchen is the master bedroom; the room also features an ensuite bathroom that is fully tiled and presently adapted for those who require assistance but can be easily amended. The property consists of two well-proportioned bedrooms, providing plenty of space for relaxation and offering a private sanctuary for the homeowners. The bedrooms are bright and airy, with plenty of space for storage and relaxation.Family bathroom conveniently located,ensuring both residents and guests have easy access. Additionally, a single room presently used as a store room, located between two bedrooms, which can be personalized to suit your lifestyle. The property has an exquisitely large landscaped front garden just steps from their front doors. This garden is perfectly designed, creating a tranquil spot that's perfect for quiet contemplation or a fun spot for children to play. Great potential for future development. It also has a well-maintained paved driveway with ample parking space. Situated in Fairview, this property benefits from an abundance of amenities located within walking distance. There are several schools, parks, shops, and restaurants on the doorstep, ensuring all your daily needs are met. The excellent transport links, including nearby bus routes and the DART station, provide easy access to Dublin's city centre and beyond. Overall, 28 Fairview Avenue Upper is a beautiful and well-presented property in a highly desirable location. With its stylish interiors, spacious rooms, and convenient amenities nearby, this property is sure to impress even the most discerning buyer.
Features
Very large front garden - possible potential extension. Excellent transport links Parking available Prime location
BER Details
BER: F BER No.117102913 Energy Performance Indicator:388.99 kWh/m²/yr

Parking
En-suite
Cable Television
Central Heating
Broadband




















Date created: Jan 19, 2024
View this search in machine-readable form:
Download JSON feed of this listing
