Description
Features
BER Details
Viewing Details
Show more...



























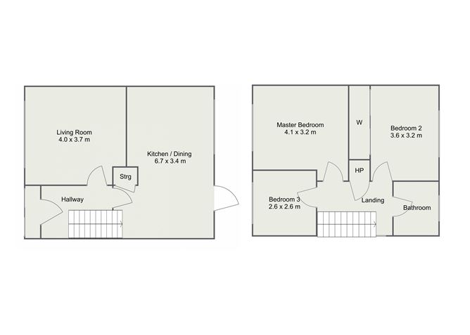
| Beds | 3 beds |
| Price | Sale Agreed |
| Property Type | |
| Size | 81 meters2 |
| Energy Rating | BER-C3 |
| Refreshed on | |
| Eircode | K78A3F8 |
| Group Name | Maher Gleeson Estates Ltd. |
| Sales License Number | 001718 |
Description
Hillcrest sits on the very brink of what Dubs call 'down the country' but is, amazingly, just 30 minutes from the City. Located in one of the earlier and oldest housing developments in the Lucan area, this home is nevertheless bright, modern and ready for action. EXPLORE INSIDE Neutral tones, wooden floors, a wood burning stove in the sitting-room, and a spacious kitchen-dining room with cupboards painted in one of the latest on-trend shades. What's not to love? The glass panelling beside the front door throws great light into the hall. The cosy sitting-room, immediately off the hall, features a red brick fireplace (did we mention the wood-burner!). The kitchen is bright, spacious and tastefully decorated. Upstairs there are three bedrooms, all with loads of wardrobe space. The bathroom is up-to-date with a spacious shower, built in wash-hand-basin and vertical radiator/towel warmer. EXPLORE OUTSIDE The rear garden, which can be reached by a side entrance, is paved and features some raised flowerbeds. A spacious brick construction shed offers lots of possibilities - workshop, studio, home office, play room or man cave. To the front there is off street parking and a small lawn. The village of Lucan is on the other side of the main N4 motorway, about 20 minutes' walk away. Probably because Lucan is enclosed on one side by the Liffey, quite a lot of the development of the area has happened on the Hillcrest side of the road, including a Tesco Superstore 5 minutes walk away and Lucan Shopping Centre, which is a 10 minute walk from this home. There are plentiful options for sports enthusiasts to explore with golf clubs and parks, and water sports based on the Liffey. Schools are well developed for the area and transport links to the city are good. THE BOTTOM LINE This is a super house in a mature area that has every convenience located locally. Don't hang about if it looks like what you've been waiting for.
Features
Oil fired central heating PVC double glazed windows Private westerly facing rear garden Concrete block shed with a pitched roof
BER Details
BER: C3
Viewing Details
By Appointment

Parking
Central Heating
Garden
Date created: Oct 20, 2022
View this search in machine-readable form:
Download JSON feed of this listing