Description
Accommodation
Features
BER Details
Show more...




























| Beds | 4 beds |
| Price | Sold |
| Property Type | Detached House |
| Size | 141 meters2 |
| Energy Rating | BER-D2 |
| Refreshed on | |
| Eircode | D18 Y7W9 |
| Group Name | Herman White Estates |
| Sales License Number | 001106 |
Description
This is a fine spacious detached four bed-roomed residence, with garage. The property offers excellent potential, in addition there are good sized front and rear gardens. A note on this point is that these gardens are a product of lovingly created, dedicated pollination, wildlife gardens by the first, and only, owners. Kilgobbin Heights is in a quiet cul-de-sac, the house offers generous accommodation with large gardens. Stepaside Village is close by with an array of eateries and shops. There are numerous schools, primary and secondary, all within the area. The Luas is a 10/15 minute walk and there is easy access to the M50. Viewing recommended for this house of character and great potential.
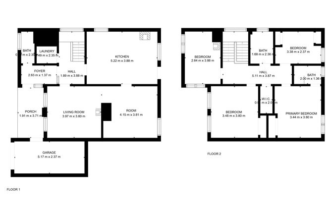
Accommodation
Entrance porch - 2.8m x 1.4m Cloakroom - 2.5m x 1.2m Utility Room - 1.5m x 1.7m Living-room - 4.2m x 3,9m Stove Dining-room - 3.8m x 3.8m Kitchen/Breakfast-room - 4.1m x 5.5m Stove. Built in units Upstairs: Landing - 4.9m x 1.5m Bedroom 1 - 2.7m x 3.7m Stove Bedroom 2 - 4.1m x 3.6m Built in wardrobe Bedroom 3 - 4.2m x 3.5m Built in wardrobe En suite - 1.8m x 2.1m WHB, WC and Shower Bedroom 4 - 2.6m x 3.5m Built in wardrobe Bathroom - 2.7m x 1.7m Bathroom, WC and WHB Outside: Garden pollinator wild life garden Garage: 3.2m x 6.2m
Features
OFCH Large front and rear gardens Walking distance to the Luas Close to all amenities Offering great potential
BER Details
BER: D2

Parking
En-suite
Central Heating
Garden
Dishwasher






Date created: Nov 16, 2022
View this search in machine-readable form:
Download JSON feed of this listing