Description
Accommodation
Features
- Double glazed PVC windows
- Oil fired central heating
- Built in the 1980's
- Block built rear shed
- Generous private rear garden
- Located in a cul de sac
- Private driveway
BER Details
Negotiator
Show more...


































| Beds | 4 beds |
| Price | Sale Agreed |
| Property Type | Semi-Detached House |
| Size | 113 meters2 |
| Energy Rating | BER-C3 |
| Refreshed on | |
| Eircode | V95PYD3 |
| Group Name | Sherry FitzGerald McMahon |
| Sales License Number | 001212 |
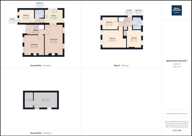
Description
Pine Grove is a popular mature development of private houses located at Gort Road, Ennis just a 10-15 minute walk from Ennis town centre particularly convenient to Ennis General, to the Gort Road Business Park and to Information Age Park Ennis. No. 20 is located in a quiet cul-de-sac with a large rear garden which includes a generous block built garden shed. The house, built in the 1980's, is spacious and well maintained. There is a covered porch at the front door. On entering the house, there is a spacious wood floored hallway to the right of which is a sitting room with an open fireplace. At the rear of the hall is the dining / livening area to the left of which is there is access to the kitchen through French doors. The kitchen is fitted with wall and floor mounted units. From the kitchen there is access to a ground floor bedroom with ensuite bathroom. On the first floor there are two double bedrooms, a single bedroom and the main bathroom.The house has oil-fired central heating, PVC teak effect double glazed windows and PVC coated aluminium fascia's and soffits.BER C3. BER No . 116412008. Floor area: 113sqm
Accommodation
Entrance Hall - Living Room - Living Dining Room - Kitchen - Downstairs Bathroom with shower - Bedroom 1 - downstairs - Bedroom 2 - Double - Bedroom 3 Double - Bedroom 4 - Single - Bathroom -
Features
BER Details
BER: C3 BER No: 116412008 Energy Performance Indicator: 210.58 kWh/m2/yr
Negotiator
Diarmuid McMahon

Central Heating
Garden
Date created: May 18, 2023
View this search in machine-readable form:
Download JSON feed of this listing