Description
Accommodation
Features
BER Details
Show more...





























| Beds | 3 beds |
| Price | Sale Agreed |
| Property Type | Semi-Detached House |
| Size | meters2 |
| Energy Rating | BER-E2 |
| Refreshed on | Sep 22, 2025 |
| Eircode | D24 H32Y |
| Group Name | Murphy Mullan |
| Sales License Number | 003543 |
Description
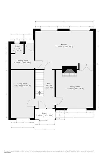
MURPHY MULLAN are proud to present this wonderful opportunity to acquire this three-bedroom house in excellent condition throughout for sale. No 19 comes to the market with outstanding interior. The property has a number of bonus features including its excellent location, in a quiet cul de sac making this and ideal opportunity for a growing family. In terms of location, Old Bawn, ever in demand, is enviably positioned within arm’s reach of all essential amenities including esteemed primary & secondary schools, extensive leisure & sports facilities, convenience stores & The Square Shopping Centre. On a transport note, bus routes are plentiful and The Luas & M50 Motorway are found within minutes by car. Bright and spacious accommodation includes: Porch, Entrance Hallway, garage converted to living space, living room, kitchen/dining room, utility room, guest WC. Upstairs are two double bedrooms plus a single bedroom and a family bathroom. Outside the property is further complimented with both front and rear gardens. Viewing is highly recommended!
Accommodation
Porch Entrance: Tiled floor Entrance Hallway: Tiled floor Reception Room/Converted Garage: Tiles flooring, coving Living Room: Feature mahogany fireplace with cast iron insert and tiles, coving, wood laminate flooring Kitchen/Dining Room: An array of wall and floor white wood kitchen presses, marble effect counter top, coving, laminate wood flooring Utility Room: Plumbed for washing machine and dryer, flooring - lino Guest WC: Wash hand basin & WC, flooring lino Upstairs: Stairs & landing carpeted Bedroom 1: Double bedroom with double built in wardrobes and carpet Bedroom 2: Double bedroom with double built in wardrobes and vanity unity, carpet Bedroom 3: Single bedroom, laminate wood flooring Bathroom: WC, Wash hand basin with press unit underneath, Step in shower unit with Triton Electric shower OUTSIDE: Front Garden: Part lawned, part paved for off street parking, an array of mature shubs and hedges Rear Garden: An array of mature shrubs and hedges, part lawned with stepping stone steps, part gravel, barna shed
Features
Excellent mature residential location! Porch entrance Garage converted Utility Room Guest WC Double glazed PVC windows Oil central heating A host of schools and amenities nearby Off street parking C: 109.22SM
BER Details
BER: E2 BER No.118766484 Energy Performance Indicator:364.27 kWh/m²/yr

Date created: Sep 22, 2025
View this search in machine-readable form:
Download JSON feed of this listing