Description
Accommodation
BER Details
Negotiator
Show more...
















| Beds | 2 beds |
| Price | €175,000 |
| Property Type | |
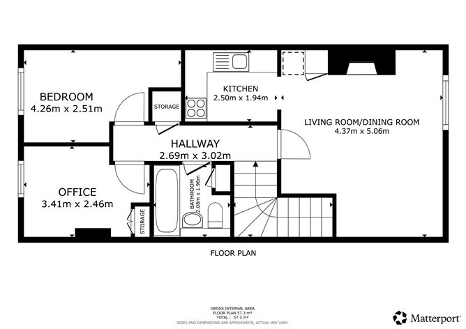
| Size | 57 meters2 |
| Energy Rating | BER-C1 |
| Refreshed on | Dec 10, 2025 |
| Eircode | Y35 EC13 |
| Group Name | DNG McCormack Quinn |
| Sales License Number | 004222 |
Description
Well presented 2 bed top floor apartment with floor area of C. 60sq.m. and accommodation briefly comprising entrance hall, open plan kitchen/living area, 2 bedrooms and bathroom. The property comes to the market in excellent condition and has been completely renovated in the last year to include a new bathroom suite, new flooring, new kitchen appliances and upgraded electric heating. Located in a small secure complex with access via an intercom system and electronic gates, with the benefit of large parking area to the rear offering ample parking to all residents. The development is located on the edge of Wexford Town, close to all amenities and is within easy walking distance of third level education at Wexford Campus SETU, making it an ideal investment property. Please note the property is for sale Fully Furnished, is currently tenanted and achieving a monthly rent of 1,200. It would make an ideal investment property. There is also an option to purchase the property with vacant possession.
Accommodation
BER Details
BER: C1 BER No: 106831449 Energy Performance Indicator: 161.66
Negotiator
Gary Quinn




















Date created: Dec 10, 2025
View this search in machine-readable form:
Download JSON feed of this listing