Description
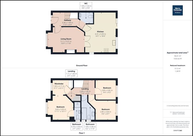
Accommodation
Features
- Gas fired central heating.
- Paved patio and raised decking area to the rear.
- Parking driveway to the front.
- Situated in a cul de sac
- Short distance from Ennis town centre and M18.
- Presented in excellent condition.
- Attic is floored
- Built in 2005 approx.
- Timber Framed House.
BER Details
Negotiator
Show more...






























