Description
BER Details
Show more...
Beds | 4 beds |
Price | Sold |
Property Type | |
Size | 145 meters2 |
Energy Rating | BER-C3 |
Refreshed on | |
Eircode | N91T2R9 |
Group Name | James L. Murtagh & Associates |
Sales License Number | 001974 |
Description
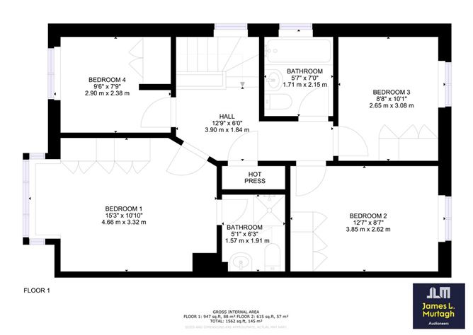
James L. Murtagh Auctioneers are delighted to present 13 Glenmore Wood, Mullingar, Co. Westmeath N91T2R9, a beautiful four-bedroom semi-detached family home to the residential market. Located in the highly sought after low-density development of Glenmore Wood, No. 13 occupies over 1560 sq.ft of living space spanning two floors and is presented in show house condition with tasteful decor and red brick external finish. Upon entering this superb home, one is greeted by a bright entrance hall with wooden floors which continue through to a spacious living room with open fireplace and floods of natural light. Double French doors create a seamless transition between the living and dining rooms, with patio doors leading out to the rear garden, filling the room with an abundance of natural sunlight. The kitchen benefits from fully fitted shaker style units, ample storage and rear aspect views. Opposite the living room is a storage room which could easily be adapted into a playroom or home office. A guest WC and utility room complete the ground floor. The modern first floor accommodation consists of three spacious bedrooms with wardrobe space, the master benefits from ensuite with electric shower, the bright double bedroom has front aspect views along with the third which is currently in use as an office/study. The fourth bedroom is currently in use for storage. A family bathroom completes first floor accommodation. Accommodation as follows: Ground floor Foyer 5.93m x 2.19m Living room 5.86m x 3.73m Dining room 4m x 3.30m Office/playroom 5.17m x 2.66m Kitchen 3.64m x 5.43m Utility 1.55m x 2.42m Wc 1.55m x 1.43m First floor Bedroom 1 4.66m x 3.32m - master ensuite 1.57m x 1.91m Bedroom 2 3.85m x 2.62m Bedroom 3 2.65m x 3.08m Bedroom 4 2.90m x 2.38m Bathroom 1.71m x 2.15m This exceptional property benefits from a rear garden with patio area with an abundance of opportunity to extend to the rear or carry out further landscaping works to provide the perfect outdoor entertainment area. The Glenmore Wood development is situated on the Dublin Road, only a short walking distance of Mullingar town with Aldi Supermarket and Applegreen Service Station opposite the estate entrance. The area is well served by public transport and less than 1.5km to major road networks including N4 and N52. There is no doubt that No. 13 would make an ideal family home, perfect for those first time buyers, or those who wish to downsize to a quiet and mature residential estate within walking distance of Mullingar town centre. Further, No. 13 would provide a high rental return on investment. Viewing of this beautiful home is highly recommended - strictly by appointment only.
BER Details
BER: C3
Balrath East, Bracklyn, , Mullingar, Westmeath
26 Stoneyford Park, Delvin, Westmeath
Apartment 2, Bellview, Dublin Road, Mullingar, Westmeath
Newforest, Kilbeggan, Westmeath
Dublin Road, Longford, Longford
Ardnacassagh, Dublin Road,, Longford, Longford
Cloonahussey, Edgeworthstown, Longford
Dublin Road, Castlepollard, Westmeath
House Type B, Gort na dTober, Irishtown,, Mullingar, Westmeath
House Type A, Gort na dTober, Irishtown, Mullingar, Westmeath
Ard Na Gréine, Dublin Road, Mullingar, Westmeath
Ard Na Gréine, Dublin Road, Mullingar, Westmeath
Dublin Road, Mullingar, Westmeath
Cooksborough, Cloghan, Mullingar, Westmeath
Culleendarragh, Multyfarnham, Westmeath
Hightown, Coralstown , Mullingar, Westmeath
Date created: Oct 6, 2023