Description
Features
BER Details
Show more...







































| Beds | |
| Price | Let Agreed |
| Property Type | |
| Size | meters2 |
| Energy Rating | BER-Exempt |
| Refreshed on | |
| Eircode | N91 K821 |
| Group Name | Egans |
| Sales License Number | 001674 |
Description
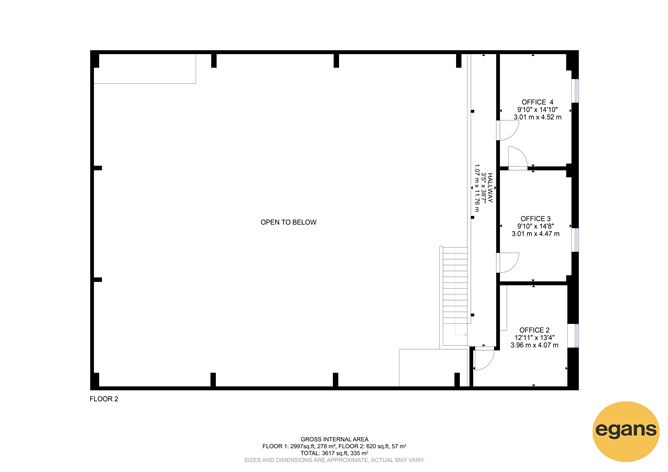
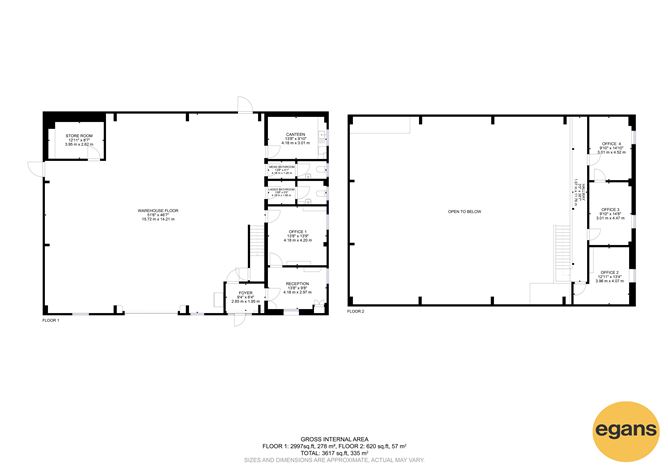
Overall Floor Area: 3600 sq. ft. Egans are delighted to present this large standalone warehouse unit to the open market to lease. Excellently located in Lough Sheever Corporate Park, this unit is sure to appeal to a number of different occupiers. Total floor area of c. 3,600 sq.ft laid out as open plan warehouse together with reception area, 4 no. offices, canteen area and w/c's. This unit is situated on a site area of approx. 0.8 acre providing ample car parking for the tenant. Lough Sheever Corporate Park is home to a number of high profile occupiers including Lidl, Wines Direct, Colourtrend etc. The unit is only a two minute drive to the M4 Dublin Motorway and 5 minute drive to Mullingar town centre Large canopy to front of unit together with roller shutter entrance. Rent is not subject to VAT. Annual commercial rates with Westmeath County Council are €2,250 per annum and annual service charge is €2,170 per annum. Viewing is highly recommend and please contact Egans for further information.
Features
Parking Phone Lines Alarm Kitchen Area
BER Details
BER: Exempt

















Date created: Mar 29, 2023
View this search in machine-readable form:
Download JSON feed of this listing