Description
Features
BER Details
Negotiator
Show more...




















































| Beds | |
| Price | €599,950 |
| Property Type | Development Land |
| Size | 93 meters2 |
| Energy Rating | BER-C2 |
| Refreshed on | Apr 1, 2026 |
| Eircode | N91 HF54 |
| Group Name | HWP.ie |
| Sales License Number | 003512 |
Description
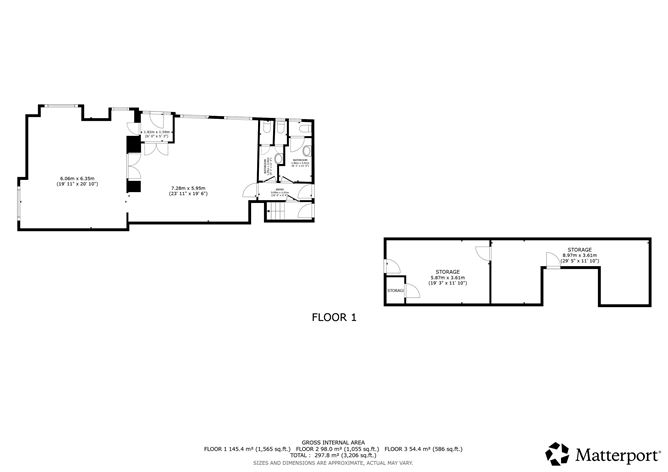
HWP Estate Agents are delighted to present to the market the renowned Saddlers Inn, a landmark licensed premises dating back to the 1700s, ideally positioned in the heart of Kilbeggan. An outstanding opportunity to acquire a landmark mixed-use property in the heart of Kilbeggan, Co. Westmeath. The Saddlers Inn, a well-established licensed premises dating back to the 1700s, is presented in excellent condition and fully fitted to a high standard, offering a turnkey business opportunity. The ground floor comprises a traditional bar with front and lounge areas, extensive seating, large cold room, and all modern conveniences including CCTV and alarm system. Overhead, the property benefits from two well-presented residential units, consisting of a spacious three-bedroom apartment and a two-bedroom apartment, both ready for immediate occupation. To the rear, the Bank Lane building (constructed c. 2006) provides three additional apartments, including two one-bedroom units and a large three-bedroom apartment, all finished to a modern standard and offering strong rental potential. Extending to just under 6,000 sq.ft. in total and zoned for both residential and commercial use, this property offers excellent flexibility and significant income potential. Positioned prominently in The Square, the property enjoys high visibility and footfall, within a thriving town ideally located between Mullingar, Tullamore, and Athlone. This is a rare opportunity to acquire a well-established licensed premises with multiple residential units and additional development/investment potential in a prime town centre location. Ideal for investors, developers, or owner-occupiers seeking a turnkey business with strong returns. Viewing Early is highly advised The Saddlers Inn (c. 1,000 sq.ft.) A beautifully maintained and fully equipped bar premises comprising: Spacious front bar and separate lounge/back bar Extensive indoor seating areas Large cold room (c. 582 sq.ft.) with fridges included Ladies & gents toilets Flagstone flooring and high-quality finishes throughout Fixtures & fittings included CCTV & alarm system Presented in excellent, turnkey condition Both units are well presented and ready for immediate occupation. Bank Lane Building (Rear ? Built c. 2006) A substantial modern building comprising three apartments: All units C-rated Modern construction Excellent rental potential Zoned for both residential and commercial use Overall Property Combined floor area: just under 6,000 sq.ft. Mixed-use zoning (Residential & Commercial) Prominent street frontage in a high-footfall location Significant income-generating potential
Features
Residential Accommodation (Overhead) 3-Bed Apartment (c. 1,324 sq.ft.) 2-Bed Apartment (c. 656 sq.ft.) Bank Lane Building (Rear Built c. 2006) 2 x 1-Bed Apartments 1 x Large 3-Bed Apartment Total floor area: c. 2,228 sq.ft. Apt 1: 339 sq.ft. Apt 2: 1,486 sq.ft. Apt 3: 403.5 sq.ft. BER For all units available on request.
BER Details
BER C2 BER No. 800988495
Negotiator
Ray Kelly

Date created: Apr 1, 2026
View this search in machine-readable form:
Download JSON feed of this listing