Description
Accommodation
BER Details
Negotiator
Show more...





















| Beds | |
| Price | €450,000 |
| Property Type | |
| Size | 0 meters2 |
| Energy Rating | BER-Exempt |
| Refreshed on | Oct 20, 2025 |
| Eircode | 0000000 |
| Group Name | DNG Michael Boland |
| Sales License Number | 002072 |
Description
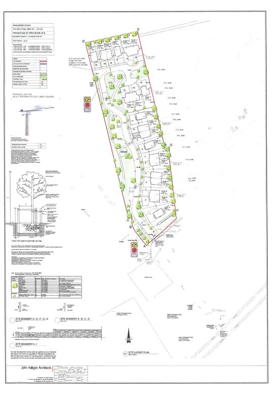
Development Site for Sale at Gortskeddia , Ballina Rd, Crossmolina. c 1.27 hectares/3.13 acres site Full planning permission for 20 properties made up of: - 5 x 2 bed dwellings - 7 x 3 bed dwellings - 8 x 4 bed dwellings Planning number P21/1186. Superb location. Part of Folio MY50278. This site is perfectly situated adjacent to the existing Deerpark development, the GAA pitch & sports ground. Crossmolina enjoys a scenic location with the river Deel flowing through the town, and it lies just a short distance from LoughConn. In the background is the Nephin Mountain range giving the area a dramatic backdrop and plenty of opportunities for walking, hiking and outdoor activities. Crossmolina acts as a local servicetown for the surrounding area, with amenities, shops and a strong sense of community. A short drive to Ballina, approx 12km, Castlebar approx 32km and only 50km approx to Knock International Airport. Contact Michael or Gerry for further details.
Accommodation
BER Details
Exempt
Negotiator
Yvonne Buckley

Date created: Oct 20, 2025
View this search in machine-readable form:
Download JSON feed of this listing