Description
BER Details
Show more...























































| Beds | |
| Price | €149,000 |
| Property Type | |
| Size | 371 meters2 |
| Energy Rating | BER-G |
| Refreshed on | Dec 8, 2025 |
| Eircode | N91 TW3F |
| Group Name | James L. Murtagh & Associates |
| Sales License Number | 001974 |
Description
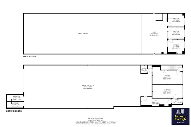
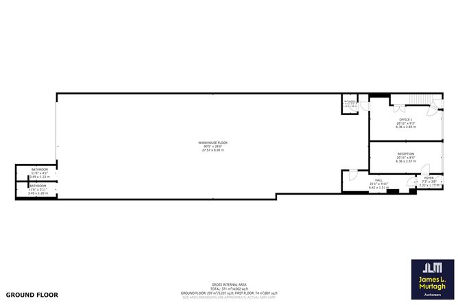
James L. Murtagh Auctioneers are delighted to offer for sale by private treaty this commercial/industrial unit with multiple uses at Main Street, Kilbeggan, Co. Westmeath, N91 TW3F. Extending to over 4,000 sq. ft. (371 m2) this property offers a wide range of potential uses, perfectly suited for warehousing, office, commercial, or retail purposes. At the rear, an expansive warehouse space measuring 27.57m x 8.69m provides rear access via a dedicated door, ideal for storage, logistics, or light industrial activities. The ground floor features a reception area, a office, and three W.C.s, while the first floor includes three additional offices and an open-plan area. While the property would benefit from modern upgrades, it represents an outstanding investment opportunity in the heart of Kilbeggan, combining central location with versatile spaces capable of supporting commercial, office, or retail operations. Accommodation Office 1 6.36m x 2.83m Reception 6.36m x 2.57m Hall 6.42m x 1.51m w.c. 1.25m x 1.58m w.c. 3.49m x 1.23m w.c. 3.49m x 1.20m Warehouse 27.57m x 8.69m Office 2 3.54m x 2.64m Office 3 3.54m x 2.30m Office 4 3.54m x 2.87m Open space 5.49m x 8.11m Kilbeggan, located in Co. Westmeath, benefits from excellent road connectivity, making it an ideal base for business and logistics operations. The town sits just off the M6 motorway, providing direct links to Dublin to the east and Galway to the west, while the N62 and N52 regional routes offer convenient access to nearby towns including Tullamore, Athlone, Mullingar, and Portarlington. This strategic location ensures efficient transport for staff, clients, and goods, positioning Kilbeggan as a well-connected hub within the Midlands region, with seamless access to major commercial and industrial centres across Ireland.
BER Details
BER: G















Date created: Dec 8, 2025
View this search in machine-readable form:
Download JSON feed of this listing