Description
Description
Rooms
Features
Features
Show more...




















| Beds | |
| Price | Sale Agreed |
| Property Type | |
| Size | meters2 |
| Energy Rating | BER- |
| Refreshed on | |
| Eircode | 0 |
| Group Name | Killian Lynch Auctioneers Valuers & Estate Agents |
| Sales License Number | 003481 |
Description
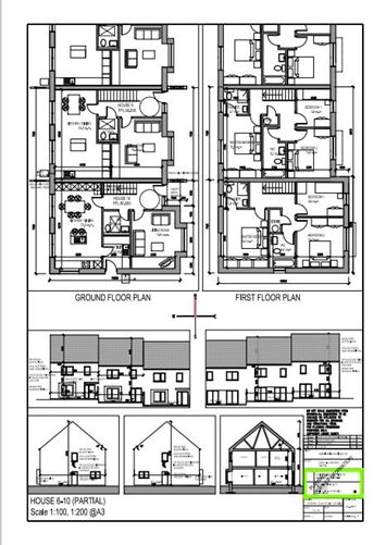
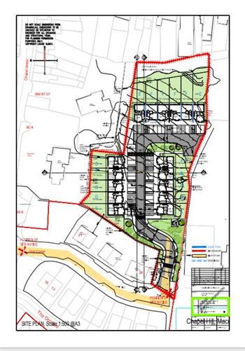
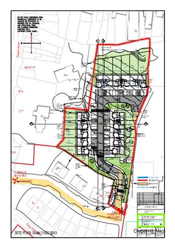
C.1 ACRE SITE WITH FULL PLANNING PERMISSION FOR 16 HOUSES Killian Lynch auctioneers are pleased to offer this C.1 acre development site with F.P.P for 16 houses. The site which is situated in a much sought after area, and is a ready to go site. Planning ref no : 225332 granted on 12 April 2024. Macroom town is fast becoming a much sought after area to live since the town was bypassed in 2023 making it attractive for development. Macroom town is situated C.30 minute's drive west of Cork city, C. 30 minutes drive east of Killarney and overall is very central to surrounding towns and villages.
Description
C.1 ACRE SITE WITH FULL PLANNING PERMISSION FOR 16 HOUSESKillian Lynch auctioneers are pleased to offer this C.1 acre development site with F.P.P for 16 houses. The site which is situated in a much sought after area, and is a ready to go site. Planning ref no : 225332 granted on 12 April 2024.Macroom town is fast becoming a much sought after area to live since the town was bypassed in 2023 making it attractive for development.Macroom town is situated C.30 minute's drive west of Cork city, C. 30 minutes drive east of Killarney and overall is very central to surrounding towns and villages.
Rooms
Features
All services adjacent
Features
All services adjacent




















Date created: Jun 19, 2024
View this search in machine-readable form:
Download JSON feed of this listing